The campus of Gdansk University of Technology does not serve many recreational or cultural outdoor areas
and lacks in cooperation spaces, where students can meet, study, share knowledge, relax and play.
Meanwhile, the city authorities plan to construct a new tramway in the area.
and lacks in cooperation spaces, where students can meet, study, share knowledge, relax and play.
Meanwhile, the city authorities plan to construct a new tramway in the area.
Our task was to suggest a new path of development of the University buildings towards South - East.
The area consists of a valley with XIX-th and XX-th century houses and a creek (currently hidden in pipes) and woody hills.
The area consists of a valley with XIX-th and XX-th century houses and a creek (currently hidden in pipes) and woody hills.
site arrangement - physical model in cardboard
_________________________________________________________
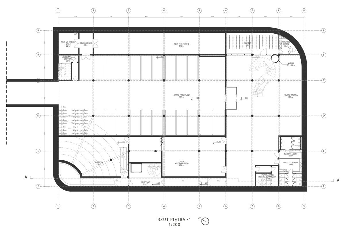
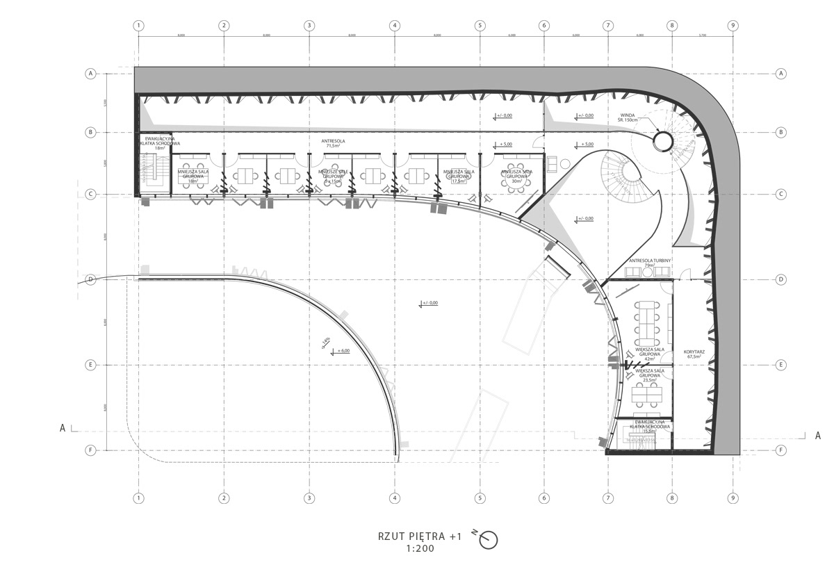
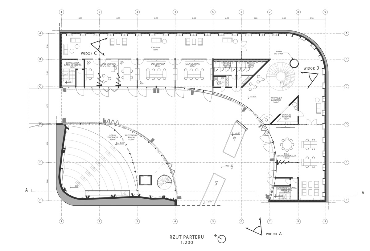
final boards 100x70