A project for my diploma of engineer of architecture.
 
The site is located in one of the oldest districts of Gdańsk, Oliwa. It is surrounded by two gothic churches, dozens of old, brick tenement houses and lots of parks, tree alleys and green hills.
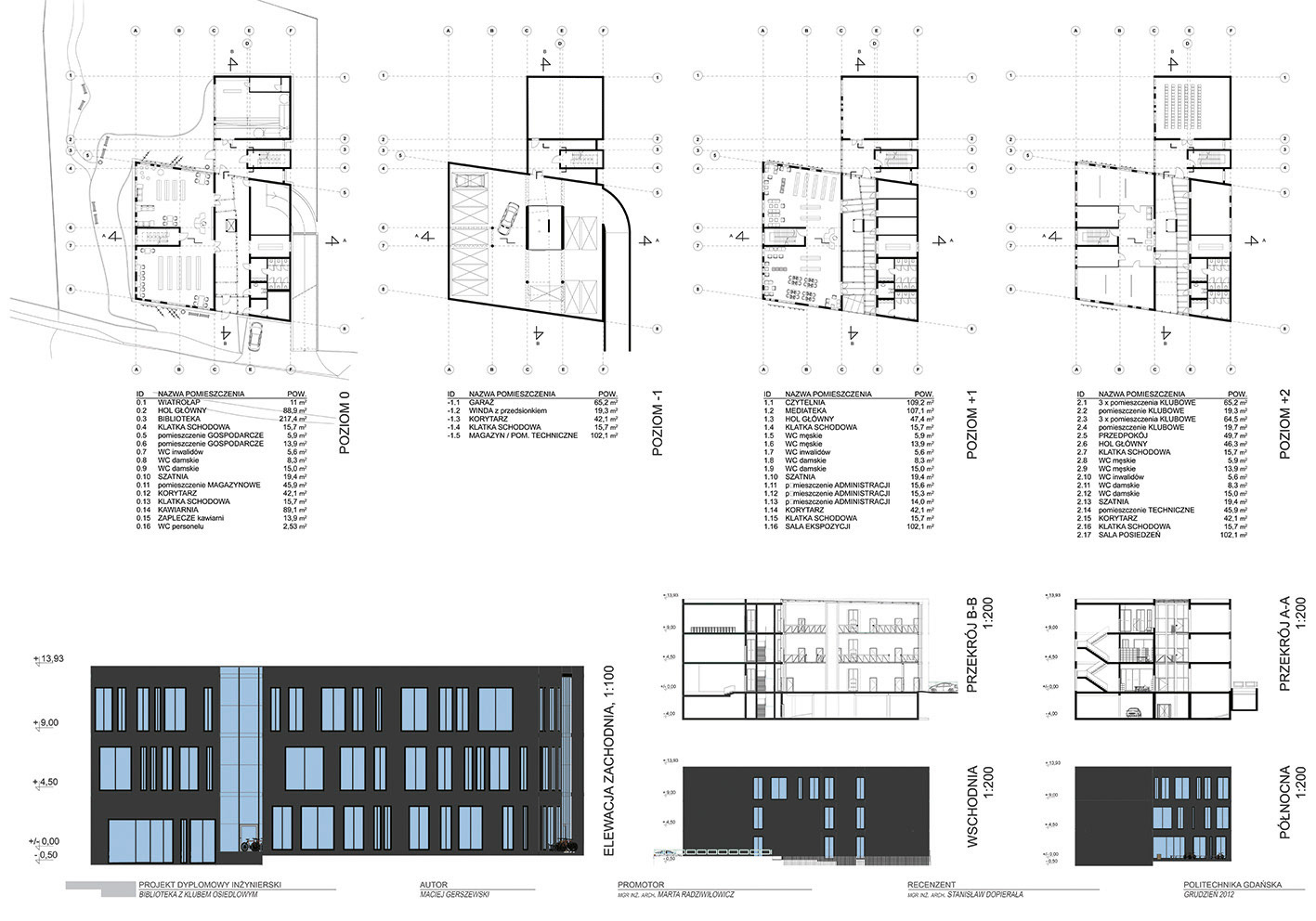
In contrast to the ambient, I have decided to create a dark, strong, however humble in details solid. This way I wanted to revoke an image of a rock among greenery. The volume of three parts of building, separated with glass passages, coincides with the neighbourhood.
 Using the windows with adjustable opacity was to arrange an interaction between the potential users and the building. A bit of a mystery aruond the library should attract the passers to see the inside. Changing the opacity lets also to easily control the amount of light, needed for users and to protect the books. 

You may also like

Back to Top