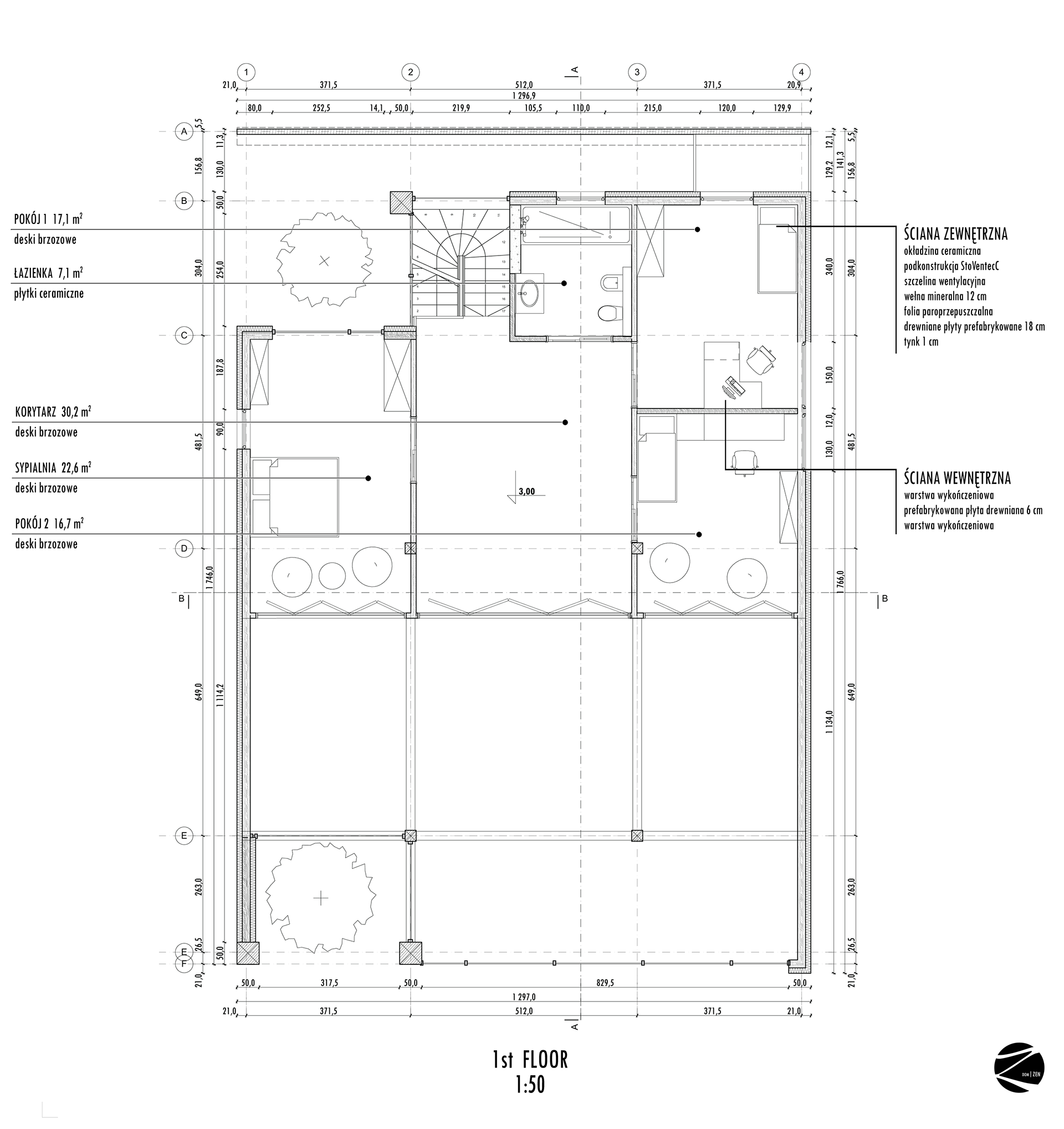
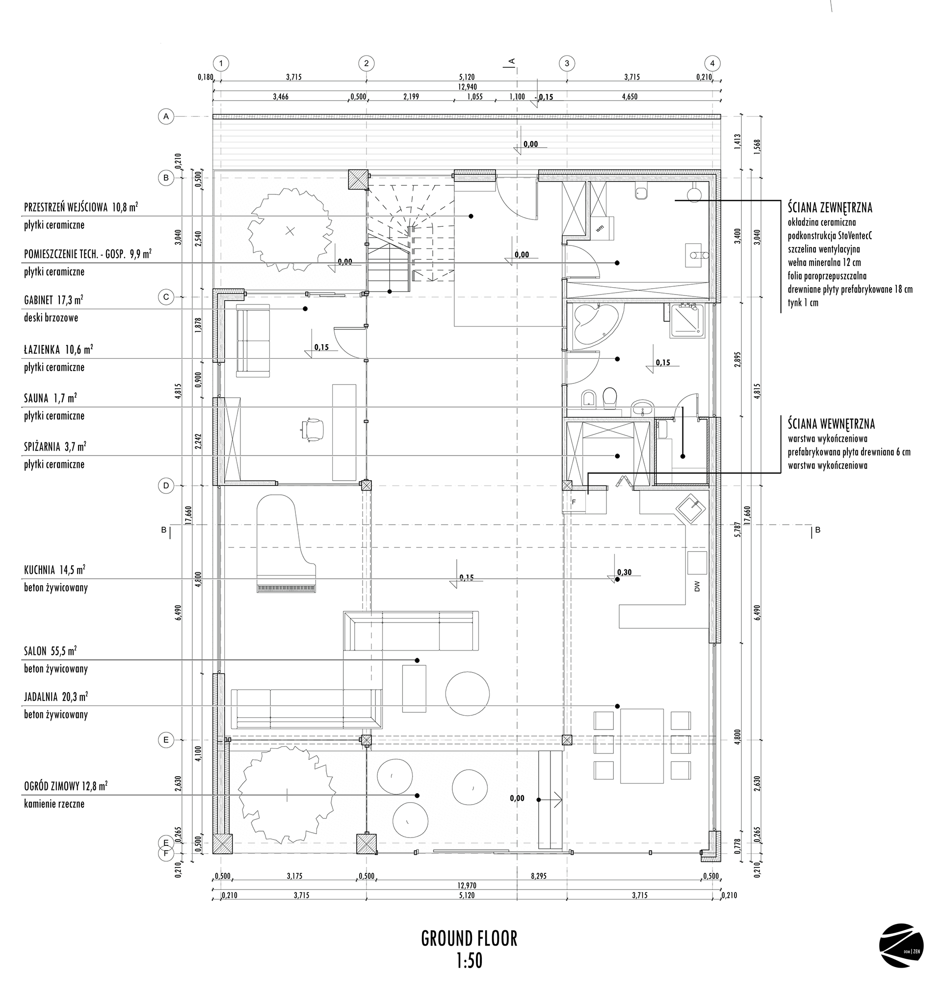
We have decided to scoop from diversity of cultural approaches to house design. This would let some freshness in Polish keynote. Oriental and mystical character in Japanese architectural thought has attracted our attention. Thanks to alike climate (distinct seasons) and extremely different culture, learning from Land of the Rising Sun provided us with attractive guidelines.
 

We have set up a row of ideas coming from examples of Zen architecture, which could be applied in conditions of Polish climate and culture. The main distinguishing mark in Japanese approach to design is thinking of the interior as the most representative part of home. The comfort of user and positive receipt of everyday spectacle of lights and view is the most important. Numerous windows with diffusing layers, shoji, subtly lighten the residence.
 
 
 
The building is set in lush garden, covering it from peeks of trespassers which brings a relaxing mood inside. There is a variety of methods of blurring boundaries between the garden and house. Japanese architects also pay attention to arrangement of functional zones, subtly marking them with change of floor layers (traditionally covered with tatami matting). Most of spaces are simply divided with light sliding partitions.
 

You may also like

Back to Top